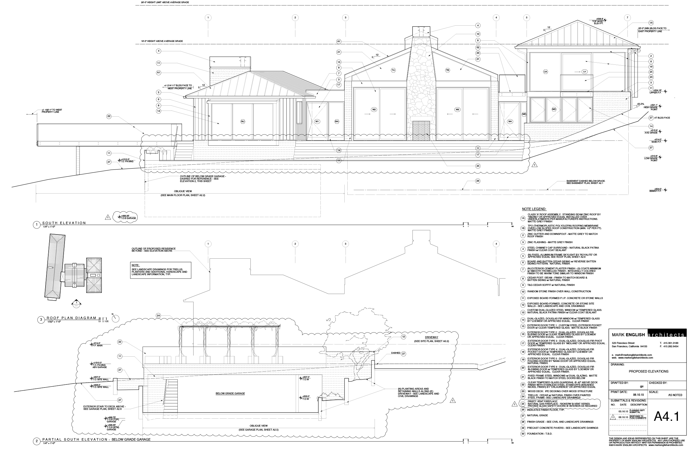
Removal of an existing single story 2,607 Sq ft. single family residence with deck and hardscape areas, detached two car garage and two car carport and two stable buildings. Proposed project scope includes new 5,958 Sq ft. two story single family residence with basement, 509 Sq ft. guest house, and new below grade parking structure.

